Proyecto

Casas con Espacios luminosos

El proyecto LIENZO DE BOADILLA es un conjunto de ocho viviendas unifamiliares adosadas que combinan funcionalidad, confort y diseño en un entorno residencial de Boadilla del Monte. Cada una cuenta con tres plantas, acceso independiente, dos plazas de aparcamiento, jardín delantero y trasero. Casas diseñadas con criterios de eficiencia energética y sostenibilidad.

PLANOS

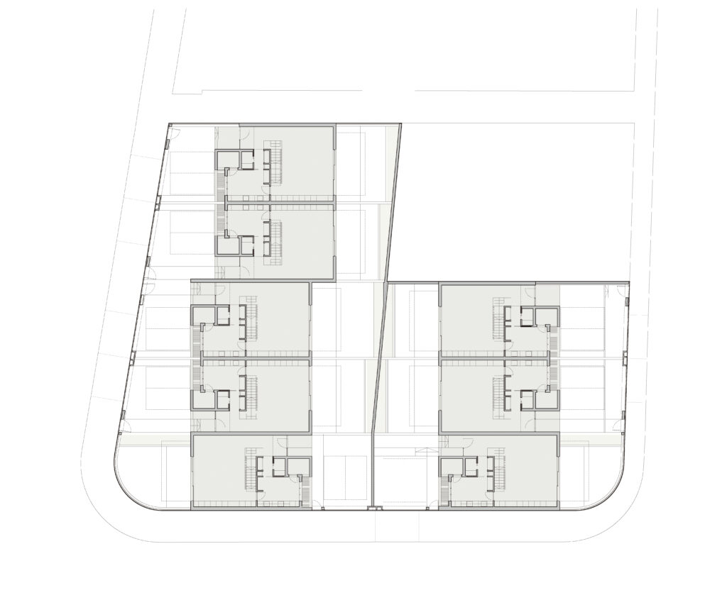
Planta Acceso

Planta Acceso - Lienzo de Boadilla

Planta 1

Planta 1 - Lienzo de Boadilla

Planta -1

Planta -1 - Lienzo de Boadilla

Cubiertas

Cubierta Viviendas - Lienzo de Boadilla

Tu Hogar en Boadilla del Monte

Proyecto Lienzo de Boadilla